
Text description provided by the architects. M.Casa reinterprets the spirit of the traditional Vietnamese home, balancing simplicity and warmth within the fast-paced rhythm of contemporary urban life. Located on a 6 × 20-meter plot in a small alley of Ho Chi Minh City, the house is surrounded by dense concrete structures. The young couple who owns the home sought a quiet, natural, and intimate environment to welcome their growing family.


The design challenge was to reconcile the limitations of an urban site, narrow dimensions, party walls on both sides, and the need for natural ventilation, with the desire for a modest, grounded living space that carries the essence of tradition within a modern context.


The architectural concept draws inspiration from traditional Vietnamese houses, featuring a courtyard, veranda, sloped roof, and side walkway. These elements are reinterpreted through a contemporary language, creating a fluid spatial sequence filled with daylight and natural breeze.



With setbacks at both the front and rear, the house remains naturally ventilated and open, offering rare stillness and fresh air within the neighborhood. M.Casa places human comfort and emotional well-being at the center, creating a gentle environment for future children while subtly reminding the next generation of the quiet, enduring values of the past.

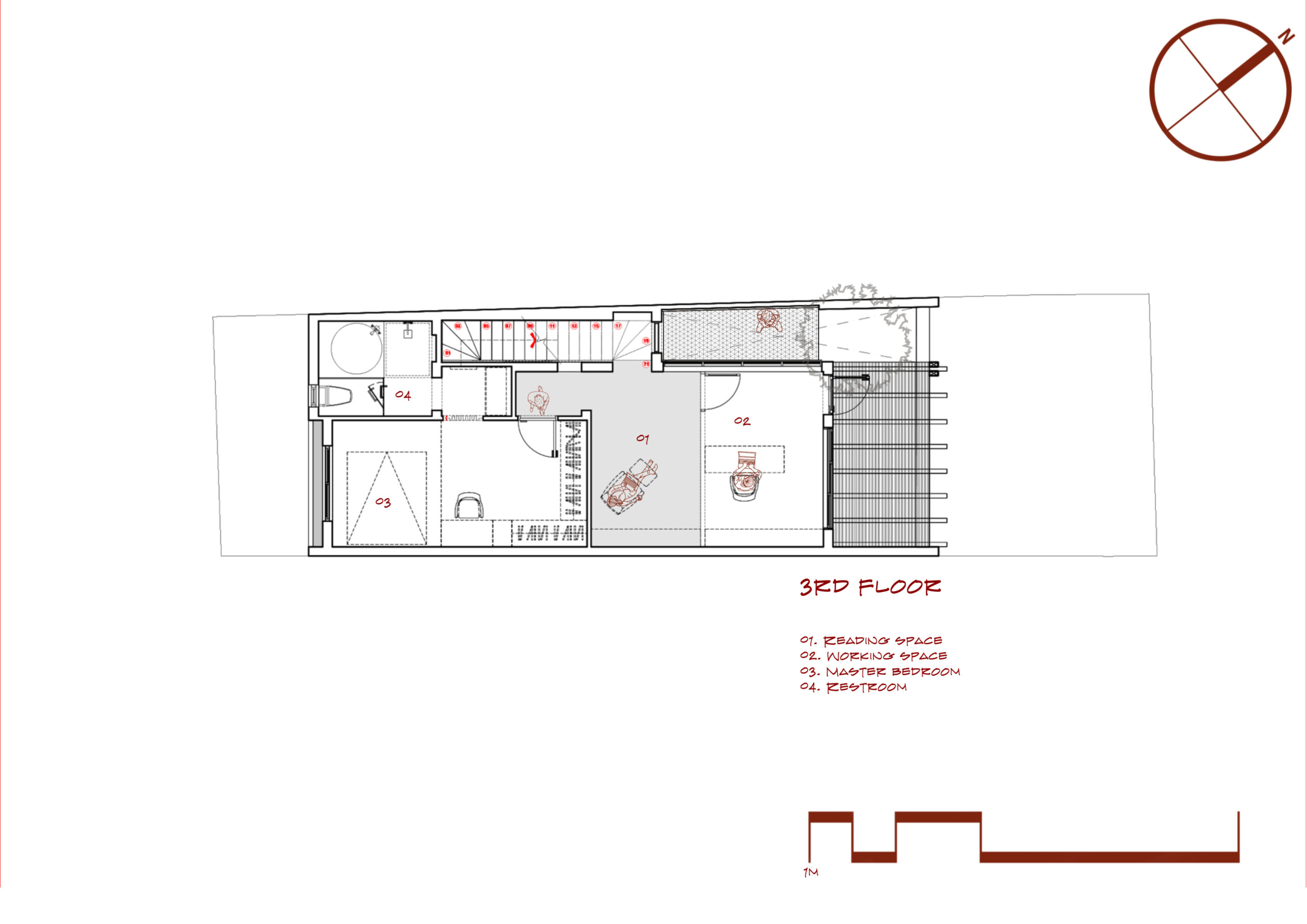
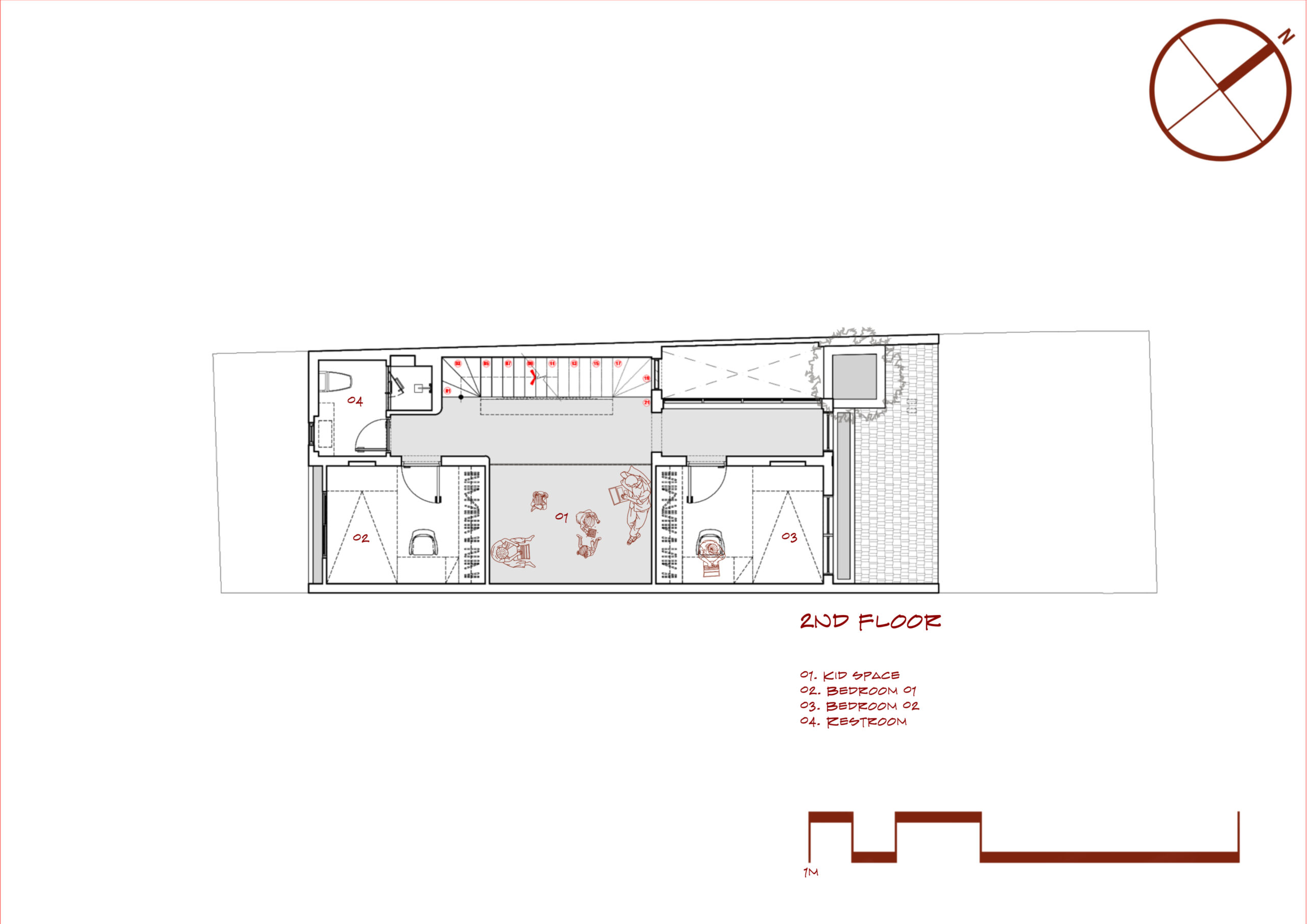
The ground floor connects the living room and kitchen into a continuous open space that encourages family interaction. A compact, well-integrated altar sits at the center of the home, maintaining its sacred presence while harmonizing with the spatial composition. The second floor contains two bedrooms at the front and rear, with a shared family area in between, envisioned as the children’s play space. The top floor hosts the master bedroom, work corner, and a private relaxation area, ensuring quietness and privacy.

Materials include exposed concrete, bare brick, clay roof tiles, and dark-stained wood, natural, durable components that evoke warmth and familiarity. Light filtering through the tiled roof and brick walls creates soft transitions throughout the interior, recalling memories of rural verandas and village homes.

M.Casa embodies simplicity, connection, and the enduring qualities of Vietnamese tradition within modern life. More than a shelter, it serves as a place that nurtures emotion and balance, between the practical and the spiritual, the old and the new, where simplicity becomes a measure of elegance.

Nguồn: https://www.archdaily.com/1036501/mcasa-hinzstudio?utm_source=offices&utm_medium=email&utm_campaign=just-published&fbclid=IwY2xjawQiCUdleHRuA2FlbQIxMABicmlkETFvcTZHcjVWQWdyNGpZcTB0c3J0YwZhcHBfaWQQMjIyMDM5MTc4ODIwMDg5MgABHrgAlVfjGKvhSxEL9hH7_blRmAPCumPo5K6b_xTTpEw5YN5nEGIohoakNt3I_aem_kuWZsYe7rV8_RfJ8dJn81A